Verkauft! Helle Wohnung inkl. kleinem Appartement

Verkauft 88085 Langenargen 395.000 €

Eckdaten

Objektnr5523
Ort88085 Langenargen
ObjektartWohnung
VermarktungKaufen
Preis395.000 €
Provision Käufer2,38 %
Wohnfläche124.0 m²
Zimmer3.5
Baujahr1993

Objektbeschreibung

Ab Ende Juni 2024 bezugsfrei!

Helle, große und sehr gepflegte 3,5-Zimmer-Wohnung mit 2 Balkonen und zusätzlichem Hobbyraum bzw. 1-Zimmer-Appartement zu verkaufen.

Die Wohnung liegt im 1. OG eines Mehrfamilienhauses mit 6 Wohneinheiten am sehr ruhigen Ortsrand von Bierkeller-Waldeck, einem Ortsteil von Langenargen.

Die Wohnfläche der Hauptwohnung beträgt ca. 98 m² und verteilt sich auf 3,5 Zimmer. Der große und helle Wohn- und Essbereich ist nach Süd-Westen ausgerichtet und hat Zugang zu einem der beiden überdachten Balkone. 2 Schlafzimmer, davon eines mit überdachtem Balkon, 1 Bad mit Badewanne und Dusche und ein Gäste-WC runden das Angebot ab. Die Wohnung ist mit Fliesen und Laminat ausgestattet.

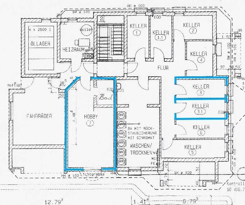
Im Untergeschoss befindet sich ein Hobbyraum mit ca. 26m² der mit einem kleinen Bad ausgestattet und zum 1-Zimmer-Appartement umfunktioniert wurde. Diese Einheit ist mit einem separaten Strom- und Wasserzähler ausgestattet.

Zu der Wohnung gehört eine Garage und ein Stellplatz sowie 2 Kellerräume. Zur gemeinsamen Nutzung ist ein großer Fahrradkeller und ein Wasch-/Trockenraum vorhanden.

Die Wohnung und das Gebäude befinden sich in einem sehr gepflegten Zustand. 2020 wurde die Heizungsanlage komplett erneuert (Gas-Brennwert mit Warmwasserspeicher), im Frühjahr 2023 wurden alle Fenster und die komplette Fassade gestrichen.

Ein aktueller Energieausweis liegt vor. Die Einheit im Untergeschoss steht leer, die Hauptwohnung wird Ende Juni 2024 frei.

Ausstattung:
• großer und heller Wohn-/Essbereich
• Bodenbelag Laminat und Fliesen
• Badezimmer mit Badewanne und Dusche
• Gäste-WC
• 2 überdachte Balkone
• 2 Kellerräume
• Hausmeisterservice
• inkl. 1 Garage und 1 Stellplatz
• zusätzliches 1-Zimmer-Appartment/Hobbyraum mit abgetrenntem Bad mit Waschbecken, Dusche und WC

Lage:
Die hier angebotene Wohnung liegt in der Gemeinde Langenargen im Teilort Bierkeller-Waldeck sehr ruhig zum Wald angrenzend. Langenargen hat ca. 7.900 Einwohnern, profitiert von einer guten Infrastruktur und ist bequem mit dem PKW oder mit öffentlichen Verkehrsmitteln zu erreichen. Ein Kindergarten, ein Friseurbetrieb und ein Blumenladen befinden sich in unmittelbarer Nähe. Weitere Einrichtungen des täglichen Bedarfs, wie Grundschule, Ärzte, Einkaufsmöglichkeiten, der Bahnhof und weitere Kindergärten befinden sich nur wenige Fahrminuten mit dem Fahrrad oder Auto entfernt.

Mit der direkten Lage am Bodensee und der unmittelbaren Nähe zu den Alpen liegt Langenargen in einer der reizvollsten Regionen Deutschlands.

Sonstiges:
Sie möchten mehr über dieses Objekt erfahren?

Rufen Sie an oder schreiben Sie uns!

Telefon: +49 (0) 7543 / 302 99 00

info@mayr-immobilien-bodensee.de

www.mayr-immobilien-bodensee.de

Bitte haben Sie Verständnis dafür, dass wir Ihre Anfrage ohne die Angabe Ihrer vollständigen Daten (Adresse und Telefon) nicht bearbeiten können.

Das Exposé wurde nach Angaben des Verkäufers erstellt. Für die Vollständigkeit und Richtigkeit der Angaben können wir als Makler keine Haftung übernehmen. Ein Irrtum bleibt vorbehalten. Die verwendeten Grundrisse oder Planungsunterlagen sind nicht maßstabsgetreu und zur Entnahme von tatsächlichen Maßen ungeeignet.

Lage

Aus Datenschutzgründen zeigen wir nur den Ort / eine ungefähre Lage.
88085 Langenargen
Geschätzte Gesamtkosten
432.051 €
Bundesland: Baden-Württemberg
Kaufpreis 395.000 €
Kaufnebenkosten 37.051 €
Notarkosten (1,5%) 5.925 €
Grunderwerbsteuer (5,0%) 19.750 €
Provision für Käufer (2,38%) 9.401 €
Grundbucheintrag (0,5%) 1.975 €
Hinweis: Die Berechnung dient nur als Orientierung und kann je nach Bundesland/Einzelfall abweichen.

Energieausweis

Ausweisartverbrauch
EffizienzklasseD
Energiekennwert118.0 kWh/(m²*a)
EnergieträgerGas
Baujahr1993
Ausgestellt am11.04.2022
Gültig bis10.04.2032
HeizungsartGas-Heizung

Grundriss

Immobilie verkaufen – kostenfreie Erstberatung

Sie erhalten eine erste Einschätzung und die nächsten Schritte – unverbindlich.